Deposito in vendita

Salerno, via Lanzalone - Carmine
€ 80.000
6 locali 6 locali
202 Mq 202 Mq
2 bagni 2 bagni

Deposito in vendita

Salerno, via Lanzalone - Carmine

Descrizione annuncio

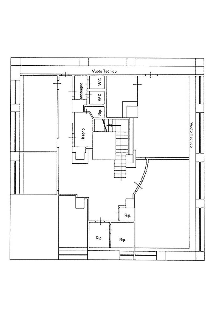
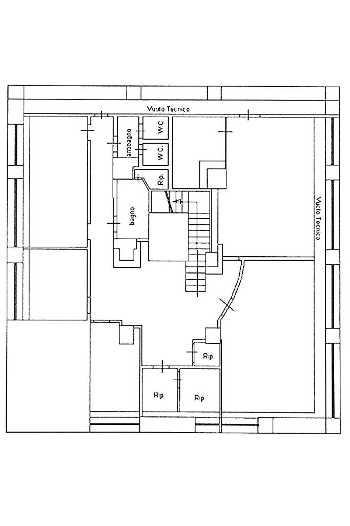
Ampio deposito finestrato – Via Lanzalone, Quartiere Carmine (Salerno)

Proponiamo in vendita deposito di 202 mq catastali, alto mt 2,85, posto al piano interrato di stabile condominiale.

L’immobile è suddiviso in più ambienti, risultando funzionale e facilmente organizzabile secondo diverse esigenze. Sono presenti servizi igienici, di cui uno per disabili, elemento di particolare valore per questa tipologia.

Pur essendo ubicato al piano sottostrada, il deposito gode di buona luminosità naturale grazie a finestroni posti in alto sotto il soffitto, con aperture su tre lati, che garantiscono aerazione e luce durante l’arco della giornata.

L'immobile è dotato di:

- Impianto di illuminazione e di internet a norma nel rispetto della sicurezza sui luoghi di lavoro.

- Impianto di riciclo d'aria da ripristinare.

- Due vasche di raccolta d'acqua con immissione tramite pompe nella colonna fecale del condominio nei casi in cui si dovessero verificare episodi di allagamento a causa di eventi meteorologici eccezionali.

- Cabina elettrica per canalizzare tutti i collegamenti elettrici e di servizio per server e collegamenti internet.

L’accesso avviene tramite porta dall’androne condominiale al piano terra, assicurando comodità e riservatezza.

Soluzione ideale come magazzino, deposito, archivio, laboratorio o spazio di supporto per attività professionali, in zona centrale e ben servita.

Superficie catastale: circa 202 mq
Ubicazione: Via Lanzalone – Quartiere Carmine, Salerno
Piano: Interrato
Accesso: da androne condominiale
Bagni: presenti
Luminosità: finestre su 3 lati

Mostra tutto

Nelle vicinanze

Trasporto pubblico Trasporto pubblico
Trasporto pubblico
670 m
Salerno Irno
Salerno Irno
670 m
Stazione Centrale
Stazione Centrale
930 m
Trasporto pubblico
950 m
Salerno
1,3 Km
Scuole Scuole
Liceo Scientifico Giovanni Da Procida
220 m
Liceo Classico Torquato Tasso
230 m
Istituto Filippo Smaldone
240 m
Scuole
430 m
Scuola elementare Medaglie D'oro
490 m
Farmacia Farmacia
Farmacia del leone
710 m
Aiello
780 m
Ferrara
880 m
Verdi
1,3 Km
Ospedali Ospedali
O.O. R.R. S. Giovanni di Dio e Ruggi D'Aragona
190 m
Casa di Cura Tortorella
210 m
Ospedale Giovanni Da Procida
810 m
Casa di Cura Villa del Sole
870 m
Supermercati Supermercati
Alimentari Sapere
270 m
Eté
370 m
Conad City
620 m
Pam
690 m
Euro spin
1,4 Km
Negozi Negozi
Benetton
680 m
Alcott
680 m
Candida
780 m
United colors of Benetton
810 m
Maja desnuda
820 m
Bar Bar
Bar Mary
140 m
Bar delle Rose
340 m
Emanuele Cafe
700 m
Le Café
740 m
Bar Velia
800 m
Ristoranti Ristoranti
Addor i pizza
330 m
La Locanda di Apicio
440 m
Mama Rosa
540 m
Portarotese
590 m
Pizzeria Salerno vecchia
610 m
Mostra tutto

Caratteristiche

Rif.:
61170948
Piano:
Seminterrato di 7 con ascensore
Totale piani:
7
Condizionamento:
Autonomo
Ascensore:
Riscaldamento:
Autonomo
Mostra tutto
Prezzo Prezzo
€ 80.000
Rata mutuo Rata mutuo
€ 377 / mese
Proponi il tuo prezzoProponi il tuo prezzo

Classe Energetica

Questo immobile è esente da classe energetica
Anno di costruzione:
1967
Riscaldamento:
Autonomo
Tipo impianto:
Ad aria
Tipo alimentazione:
Aria

Ti interessa visionare l'immobile?

Fissa un appuntamento  Fissa un appuntamento

Richiedi informazioni

Clicca su Leggi per aprire l'informativa
* Questi campi sono obbligatori

Calcola il tuo mutuo

Semplice e senza impegno
Anticipo

( % )
Mutuo

( % )

pochi semplici passi

inserisci i tuoi dati
Questionario completato
Grazie per aver richiesto un appuntamento senza impegno con un nostro Consulente del Credito e Assicurativo.

Hai inserito correttamente tutti i dati necessari e a breve riceverai una e-mail con un link da convalidare per inviare i tuoi dati.
Affiliato
Sviluppo E Consulenza D.I.
Corso Garibaldi, 149-151 84122 Salerno (SA)

Il nostro staff


  • Antonio Bracalello
    Affiliato
Corso Garibaldi, 149-151 84122 Salerno (SA)
Zona: Centro-Centro Storico
Mostra su mappa
Orari: 9:00 - 13:00 16:00 - 20:00; sabato 9:00 - 13.00 pomeriggio su appuntamento.
Affiliato
Sviluppo E Consulenza D.I.
Corso Garibaldi, 149-151 84122 Salerno (SA)

2026 Tecnocasa Franchising S.p.A. - P. IVA 08365160152 - Via Monte Bianco 60/A 20089 Rozzano (MI). Ogni agenzia ha un proprio titolare ed è autonoma. Privacy policy | Policy utilizzo | Cookie policy