6 locali in vendita

Salerno, Corso Vittorio Emanuele - Centro
€ 880.000
Prezzo aggiornato
6 locali 6 locali
180 Mq 180 Mq
2 bagni 2 bagni

6 locali in vendita

Salerno, Corso Vittorio Emanuele - Centro

Descrizione annuncio

Salerno – Corso Vittorio Emanuele – uso residenziale, studio o attività ricettiva

In una delle zone più prestigiose e centrali della città, precisamente su Corso Vittorio Emanuele, arteria principale dello shopping salernitano e area completamente pedonalizzata, proponiamo in vendita un appartamento di ampia metratura, ubicato al piano alto di un fabbricato signorile servito da ascensore.

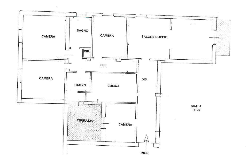
La proprietà si sviluppa su un'ampia superficie, suddivisa in sei vani di generose dimensioni, cucina abitabile, doppi servizi, balcone e terrazzo con esposizione riservata, ideale per uso esterno. Caratteristiche principali:

Posizione strategica: a pochi metri dalla Stazione Centrale, dal terminal bus e dai porti turistici con collegamenti diretti verso Capri, Ischia, Costiera Amalfitana e Costiera Cilentana.

Ottima distribuzione interna, adatta a molteplici soluzioni abitative e professionali.

Luminosità e silenziosità garantite dal piano alto e dalla tripla esposizione.

Contesto condominiale signorile, con servizio di portineria.

Ideale sia per uso residenziale che per studio professionale associato, ufficio di rappresentanza o attività ricettive extralberghiere (B&B, affittacamere, casa vacanze), grazie alla vicinanza a snodi turistici e di trasporto.

Disponibilità immediata.

Per ulteriori dettagli, planimetrie o per fissare un appuntamento, contattate i nostri uffici.

Mostra tutto

Nelle vicinanze

Trasporto pubblico Trasporto pubblico
stazione di Salerno
stazione di Salerno
400 m
Trasporto pubblico
990 m
Stazione Centrale
Stazione Centrale
340 m
Trasporto pubblico
820 m
Salerno
490 m
Scuole Scuole
Liceo Classico Torquato Tasso
540 m
Istituto Filippo Smaldone
910 m
Scuola elementare Medaglie D'oro
960 m
Liceo Scientifico Giovanni Da Procida
970 m
Scuola media Torquato Tasso
1,1 Km
Farmacia Farmacia
Ferrara
240 m
Farmacia del leone
450 m
Aiello
690 m
Verdi
1,3 Km
Ospedali Ospedali
Casa di Cura Tortorella
570 m
O.O. R.R. S. Giovanni di Dio e Ruggi D'Aragona
660 m
Casa di Cura Villa del Sole
1,0 Km
Ospedale Giovanni Da Procida
1,6 Km
Supermercati Supermercati
Pam
600 m
Conad City
810 m
Euro spin
890 m
Alimentari Sapere
910 m
Eté
970 m
Negozi Negozi
Candida
80 m
United colors of Benetton
120 m
Maja desnuda
140 m
OVS
160 m
Benetton
360 m
Bar Bar
Baraonda
120 m
Bar
200 m
Bar Gelateria Rogi
210 m
Grano Bakery Bar
280 m
Bar Nettuno
440 m
Ristoranti Ristoranti
Burger Bar
50 m
Pizzeria Pinocchio
120 m
Al Dente Spaghetteria
130 m
Gastronomia Salumeria del corso
130 m
Ristorante Pizzeria Spunzillo
190 m
Mostra tutto

Caratteristiche

Rif.:
61113981
Piano:
6 di 7 con ascensore (Piano alto)
Balconi:
1
Terrazzi:
1
Camere da letto:
3
Arredamento:
Assente
Mostra tutto
Prezzo Prezzo
€ 880.000
Rata mutuo Rata mutuo
€ 4.154 / mese
Spese annue Spese annue
€ 2.200
Proponi il tuo prezzoProponi il tuo prezzo
Immobile valutato con T·Valuta

Classe Energetica

G
G
G
G
G
G
G
G
G
EP globale non rinnovabile:
175.00 kW h/m² anno
EP globale rinnovabile:
175.00 kW h/m² anno
EP invernale del fabbricato:
EP estiva del fabbricato:
Anno di costruzione:
1952
Riscaldamento:
Autonomo
Tipo impianto:
A radiatori
Tipo alimentazione:
GPL

Prezzo ridotto di €1 (8%%)

Ti interessa visionare l'immobile?

Fissa un appuntamento  Fissa un appuntamento

Richiedi informazioni

Clicca su Leggi per aprire l'informativa
* Questi campi sono obbligatori

Calcola il tuo mutuo

Semplice e senza impegno
Anticipo

( % )
Mutuo

( % )

pochi semplici passi

inserisci i tuoi dati
Questionario completato
Grazie per aver richiesto un appuntamento senza impegno con un nostro Consulente del Credito e Assicurativo.

Hai inserito correttamente tutti i dati necessari e a breve riceverai una e-mail con un link da convalidare per inviare i tuoi dati.
Affiliato
Sviluppo E Consulenza D.I.
Corso Garibaldi, 149-151 84122 Salerno (SA)

Il nostro staff


  • Antonio Bracalello
    Affiliato
Corso Garibaldi, 149-151 84122 Salerno (SA)
Zona: Centro-Centro Storico
Mostra su mappa
Orari: 9:00 - 13:00 16:00 - 20:00; sabato 9:00 - 13.00 pomeriggio su appuntamento.
Affiliato
Sviluppo E Consulenza D.I.
Corso Garibaldi, 149-151 84122 Salerno (SA)

2025 Tecnocasa Franchising S.p.A. - P. IVA 08365160152 - Via Monte Bianco 60/A 20089 Rozzano (MI). Ogni agenzia ha un proprio titolare ed è autonoma. Privacy policy | Policy utilizzo | Cookie policy